zurück zur Übersicht

Zentrales Geschäftslokal in Gries zu vermieten – hohe Sichtbarkeit und Kundenfrequenz - GES00184

Alle Bilder
4
140 m²
3.000 €
Bozen, Südtirol

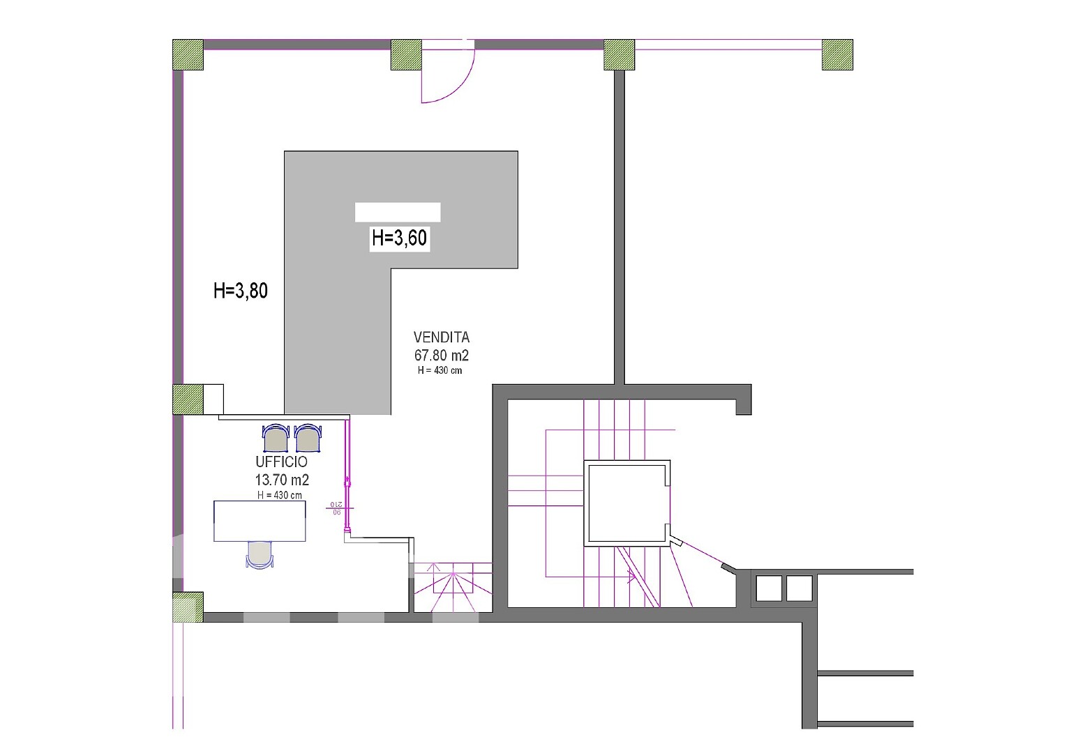
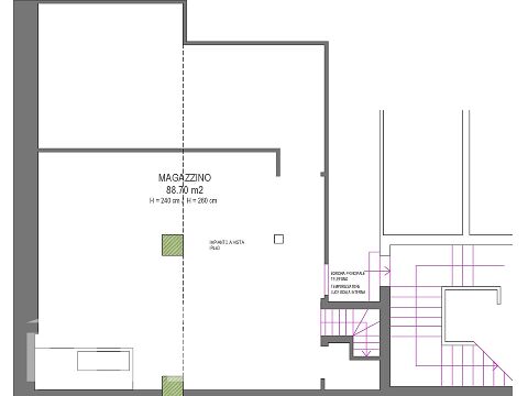
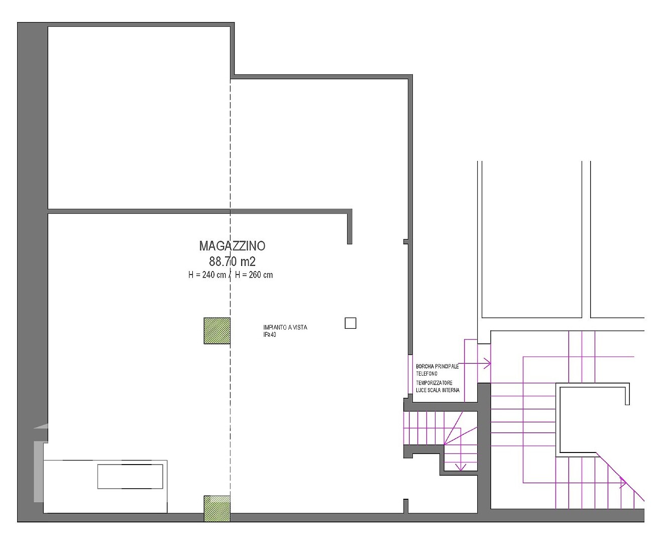
Zur Vermietung steht ein Geschäft in Bozen, großzügig und voll eingerichtet, mit Büro, Magazzin und auf mehrere Stockwerke verteilt. Die gut gepflegten Räumlichkeiten bieten vielfältige Nutzungsmöglichkeiten für Handel, Büro oder Dienstleistung. Durch die Aufteilung auf mehrere Ebenen ergeben sich flexible Präsentations- und Lagerbereiche; eine einfache Anpassung an individuelle Nutzungskonzepte ist möglich. Kurzfristig bezugsbereit, Besichtigungen nach Vereinbarung. 

Bei Abschluss eines Mietvertrags berechnen wir dem Mieter eine Provision in Höhe von 15 % der Jahresmiete.

Info
Handelsfläche
140,00 m²
Nettofläche
80,00 m²
Stockwerk
Mehrere Stockwerke
Zustand
Bewohnbar
Heizungskontrolle
Autonom
Keller
Ja
Referenznummer
BZ M-GES00184
Pläne Anzeigen
Mappe laden
zurück zur Übersicht
zurück zur Übersicht