zurück zur Übersicht

Wohnung in Bozen – ruhig und hell - W01231

Alle Bilder
1
1
63 m²
Preis auf Anfrage
Bozen, Südtirol

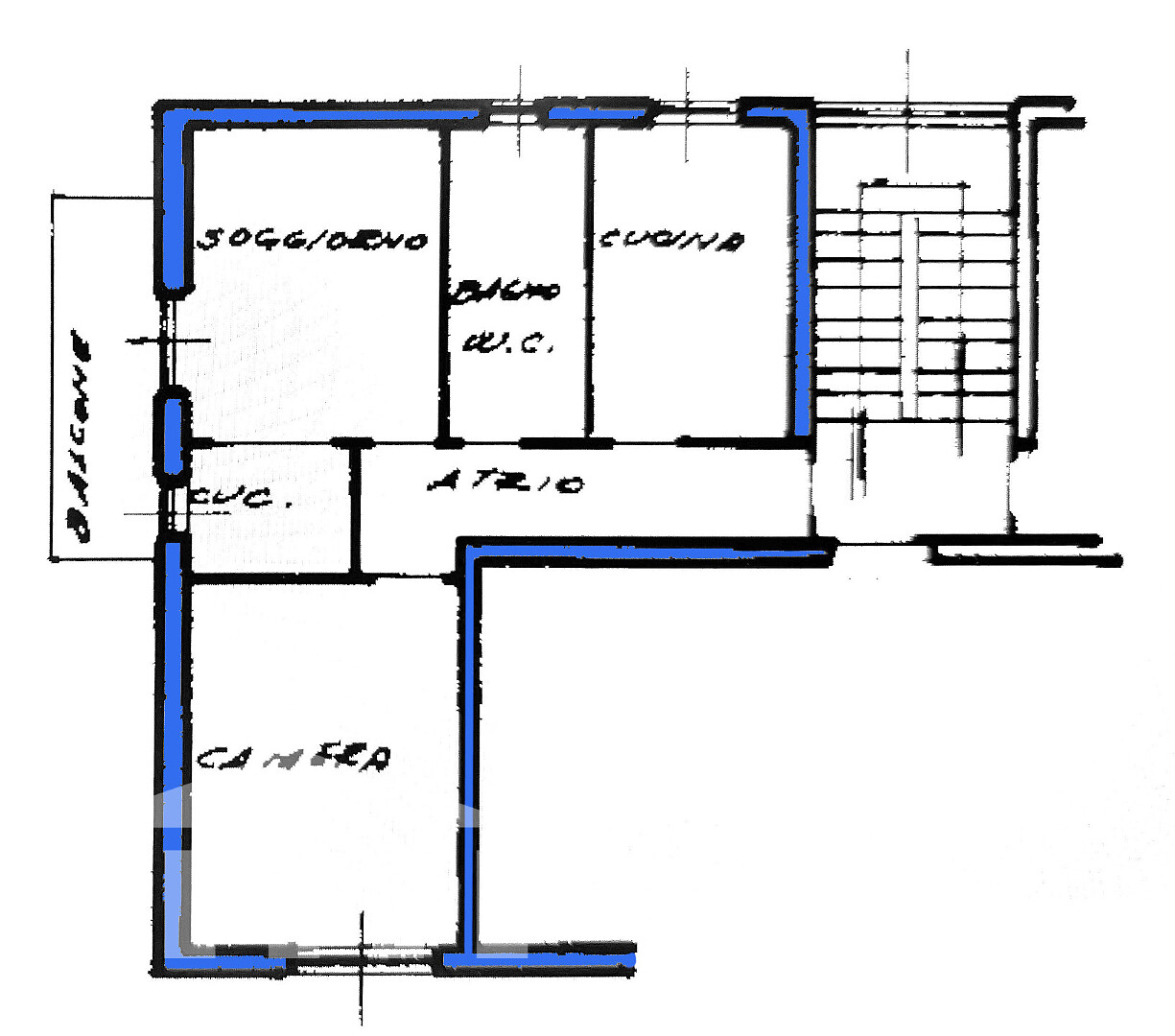
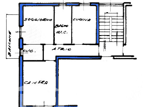
Zum Verkauf steht eine (netto) 49,8 m² große Wohnung in Bozen im 3. Stock. Die Einheit verfügt über ein Wohnzimmer, Küche, Schlafzimmer, Badezimmer und einen Balkon. Der Zustand ist zu renovieren – ideal für Käufer, die Wohnraum nach eigenen Vorstellungen gestalten möchten. Durch die praktische Raumaufteilung und die Lage bietet die Immobilie Potenzial für Eigennutzer oder als Anlageobjekt. Besichtigung nach Vereinbarung. 

Der Makler hat Anspruch auf eine Provision vom Käufer in Höhe von 3% (drei Prozent) des Verkaufspreises (zzgl. MwSt.), wenn der Vertrag durch seine Vermittlung zustande kommt. 

Info
Handelsfläche
63,00 m²
Nettofläche
49,80 m²
Stockwerk
3
Badezimmer
1
Schlafzimmer
1
Zustand
Zu rennovieren
Heizungskontrolle
Zentral
Keller
Ja
Balkon
Ja
Energiezertifizierung
In Ausarbeitung
Referenznummer
BZ V-W01231
Pläne Anzeigen
Mappe laden
zurück zur Übersicht
zurück zur Übersicht