zurück zur Übersicht

Vollständig renovierte lichtdurchflutete Wohnung in der Romstrasse

Alle Bilder
1
1
63 m²
325.000 €
Bozen, Südtirol

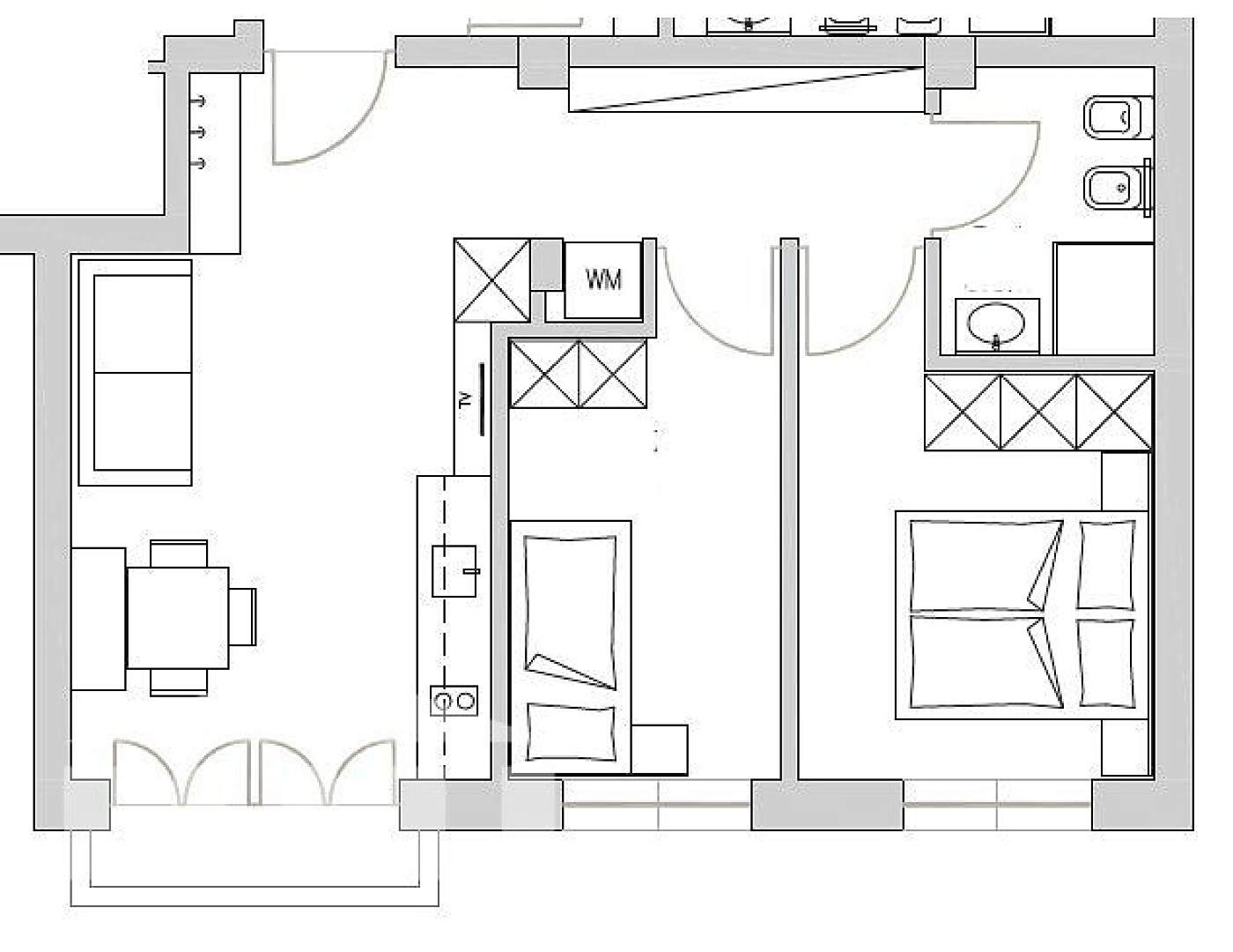
Neuwertige lichtdurchflutetet Zweizimmerwohnung in Bozen in der Romastrasse. Die attraktive Einheit verfügt über ein Schlafzimmer, ein modernes Badezimmer, einen hellen Wohn-/Essbereich mit offener Küche und direkten Zugang zum Balkon. Hochwertige Ausstattungsdetails, viel Tageslicht und ein Aufzug im Haus sorgen für zusätzlichen Komfort. Ideal für Singles, Paare oder als Stadtwohnung – sofort bezugsfertig.

Der Makler hat Anspruch auf eine Provision vom Käufer in Höhe von 3% (drei Prozent) des Verkaufspreises (zzgl. MwSt.), wenn der Vertrag durch seine Vermittlung zustande kommt. 

Info
Handelsfläche
63,00 m²
Nettofläche
46,00 m²
Badezimmer
1
Schlafzimmer
1
Baujahr
2026
Zustand
Neu
Heizungskontrolle
Zentral
Kondominiumskosten
100 €
Keller
Ja
Balkon
Ja
Aufzug
Ja
Energiezertifizierung
In Ausarbeitung
Referenznummer
BZ V - W001220
Pläne Anzeigen
Mappe laden
zurück zur Übersicht
zurück zur Übersicht