zurück zur Übersicht

VÖ V-H01049 - idyllisches Haus in traumhafter Lage - umliegend Wiesen und Wald

Alle Bilder
4
2
500 m²
Preis auf Anfrage
Völs am Schlern, Südtirol

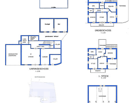
Das hochwertig renovierte Haus mit ländlichem Stil in der Umgebung von Völs am Schlern verfügt auf 3 Etagen über zwei Wohnungen mit je 2 Schlafzimmern, Wohnzimmer, Küche und Badezimmer, und einen ausbaubaren Dachboden. Es bietet eine gemütliche Terrasse und mehrere Balkone mit atemberaubendem Blick auf die umliegende Berglandschaft. Die ruhige Lage inmitten der Natur macht das Haus zu einem idealen Rückzugsort, während Geschäfte und Restaurants in der Nähe liegen. Perfekt für Familien oder als Ferienhaus für Naturliebhaber. 

Ein Makler hat Anspruch auf eine Provision vom Käufer in Höhe von 3% (drei Prozent) des Verkaufspreises (zzgl. MwSt.), wenn der Vertrag durch seine Vermittlung zustande kommt. 
 

Info
Handelsfläche
500,00 m²
Nettofläche
0,00 m²
Stockwerk
Mehrere Stockwerke
Badezimmer
2
Schlafzimmer
4
Zustand
Rennoviert
Heizungskontrolle
Autonom
Keller
Ja
Balkon
Ja
Terasse
Ja
Garten
Ja
Energiezertifizierung
In Ausarbeitung
Referenznummer
VÖ V-H01049
Pläne Anzeigen
Mappe laden
zurück zur Übersicht
zurück zur Übersicht