zurück zur Übersicht

Modernisierte 3‑Schlafzimmer-Wohnung im historischen St Pauls – lichtdurchflutet und familienfreundlich - W01234

Alle Bilder
3
2
180 m²
850.000 €
Eppan a.d. Weinstr., Südtirol

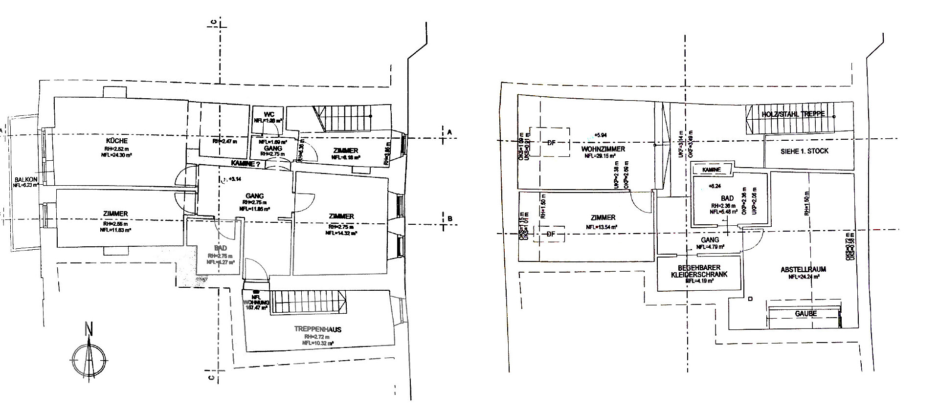
Helle, renovierte Wohnung zum Verkauf, verteilt auf mehrere Ebenen, ca. 133 m² Nettowohnfläche. Drei Schlafzimmer und zwei moderne Bäder bieten komfortablen Wohnraum. Großzügiges Wohn- und Esszimmer mit Zugang zum Balkon, hochwertige Materialien und frische Sanierung sorgen für zeitgemäßen Wohnkomfort. Praktische Einbauschränke und gepflegte Böden, viel Tageslicht durch große Fenster. Ruhige Lage mit guter Anbindung – ideal für Familien oder Paare, die eine durchdachte Raumaufteilung und modernen Standard suchen. Besichtigung nach Vereinbarung. 

Der Makler hat Anspruch auf eine Provision vom Käufer in Höhe von 3% (drei Prozent) des Verkaufspreises (zzgl. MwSt.), wenn der Vertrag durch seine Vermittlung zustande kommt. 

Info
Handelsfläche
180,00 m²
Nettofläche
133,00 m²
Stockwerk
Mehrere Stockwerke
Badezimmer
2
Schlafzimmer
3
Zustand
Rennoviert
Heizungskontrolle
Autonom
Keller
Ja
Balkon
Ja
Referenznummer
BZ V-W01234
Pläne Anzeigen
Mappe laden
zurück zur Übersicht
zurück zur Übersicht