zurück zur Übersicht

KA M-H00243 - große Wohnung - FORESTERIA

Alle Bilder
8
4
300 m²
2.000 €
Kaltern a.d. Weinstr., Südtirol

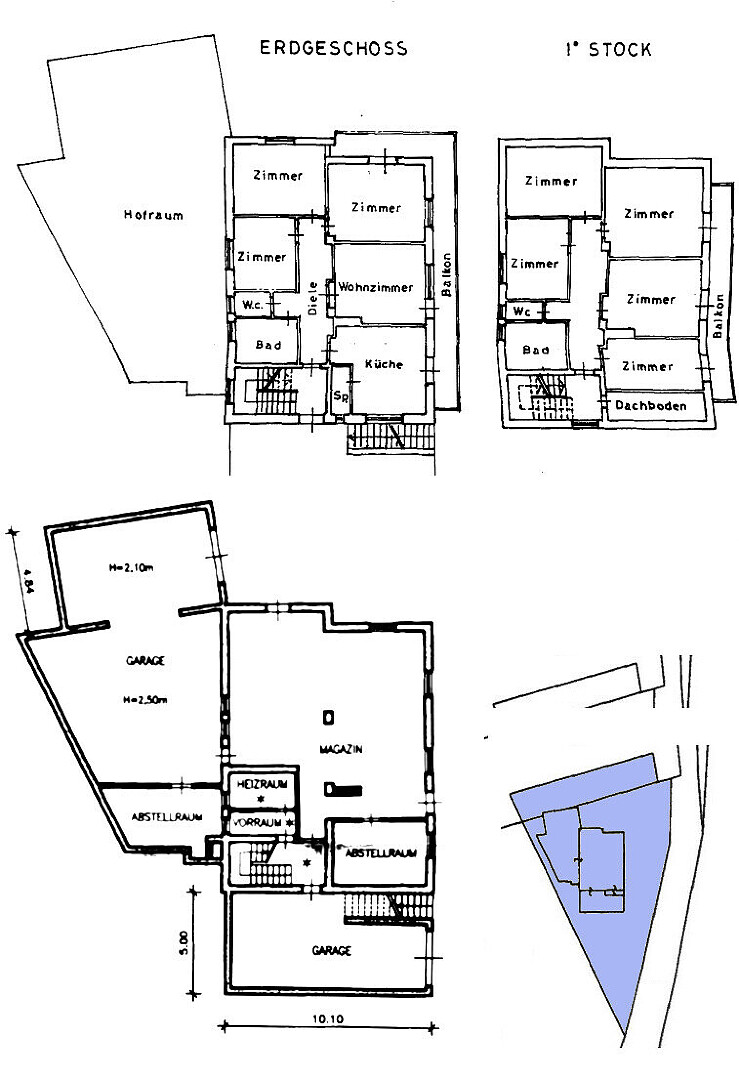
Große Wohnung in Kaltern a.d. Weinstr. zur Miete an Firmen: Auf ca. 280 m² erstreckt sich eine über mehrere Stockwerke verteilte Einheit mit 8 Schlafzimmern, 4 Bädern, Balkon und Terrasse. Stellplätze bieten großzügige Parkmöglichkeiten. 

Bei Abschluss eines Mietvertrags berechnen wir dem Mieter eine Provision in Höhe von 15% der Jahresmiete.
 

Info
Handelsfläche
300,00 m²
Nettofläche
280,00 m²
Stockwerk
Mehrere Stockwerke
Badezimmer
4
Schlafzimmer
8
Zustand
Zu rennovieren
Heizungskontrolle
Zentral
Garage
Ja
Parkplätze
Ja
Balkon
Ja
Terasse
Ja
Garten
Ja
Referenznummer
KA M-H00243
Pläne Anzeigen
Mappe laden
zurück zur Übersicht
zurück zur Übersicht