zurück zur Übersicht

Herrschaftliche Wohnung mit 2 Schlafzimmern in bester Lage - Jetzt zugreifen!

Alle Bilder
2
2
184 m²
2.500 €
Bozen, Südtirol

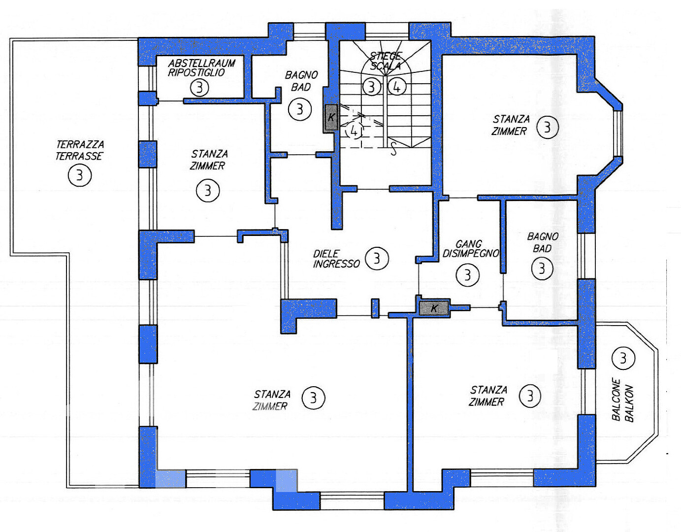
Diese geräumige Wohnung im ersten Stock verfügt über zwei Schlafzimmer und zwei Badezimmer. Sie bietet eine Fläche von 184 Quadratmetern sowie eine Terrasse und einen Balkon, die zum Entspannen im Freien einladen. Die moderne Einrichtung und die helle Atmosphäre schaffen ein angenehmes Wohngefühl. Die offene Küche ist voll ausgestattet und lädt zum Kochen ein. Die Wohnung befindet sich in einer ruhigen Wohngegend und ist ideal für Paare oder kleine Familien. Durch die Nähe zu Geschäften, Restaurants und öffentlichen Verkehrsmitteln ist eine gute Infrastruktur gegeben.

Info
Handelsfläche
184,00 m²
Nettofläche
140,00 m²
Stockwerk
1
Badezimmer
2
Schlafzimmer
2
Baujahr
1980
Zustand
Neu
Heizungskontrolle
Autonom
Kondominiumskosten
100 €
Keller
Ja
Balkon
Ja
Terasse
Ja
Energiezertifizierung
In Ausarbeitung
Referenznummer
M BZ W00733
Pläne Anzeigen
Mappe laden
zurück zur Übersicht
zurück zur Übersicht