zurück zur Übersicht

EP V-W01151 - Neue Wohnung mit Garten

Alle Bilder
2
1
80 m²
488.000 €
Eppan a.d. Weinstr., Südtirol

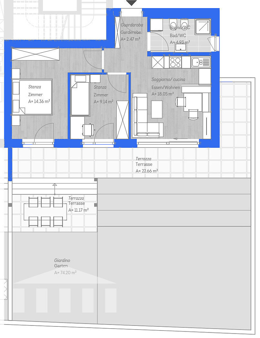
Zum Verkauf steht diese moderne Neubauwohnung in Eppan/St. Pauls. Auf 49 m²Nettowohnfläche bietet sie zwei Schlafzimmer, ein elegantes Badezimmer und einen offenen Wohn-/Küchenbereich. Die Wohnung im Erdgeschoss verfügt über eine sonnige Terrasse mit direktem Zugang und einen Privaten Garten; ein Aufzug gewährleistet bequemen Zugang zur Garage. Hochwertige Ausstattung, helle Räume und ein durchdachter Grundriss machen sie ideal für Paare oder als Anlageobjekt. 
Fertigstellung Mitte 2026.

Der Makler hat Anspruch auf eine Provision vom Käufer in Höhe von 3% (drei Prozent) des Verkaufspreises (zzgl. MwSt.), wenn der Vertrag durch seine Vermittlung zustande kommt. 
 

Info
Handelsfläche
80,00 m²
Nettofläche
49,00 m²
Badezimmer
1
Schlafzimmer
2
Baujahr
2026
Zustand
Neu
Heizungskontrolle
Zentral
Keller
Ja
Terasse
Ja
Garten
Ja
Aufzug
Ja
Energiezertifizierung
A+
Referenznummer
EP V-W01151
Pläne Anzeigen
Mappe laden
zurück zur Übersicht
zurück zur Übersicht