zurück zur Übersicht

EP V-W00459 - Verkauf als Wohnung oder Büro

Alle Bilder
3
2
128 m²
Preis auf Anfrage
Eppan a.d. Weinstr., Südtirol

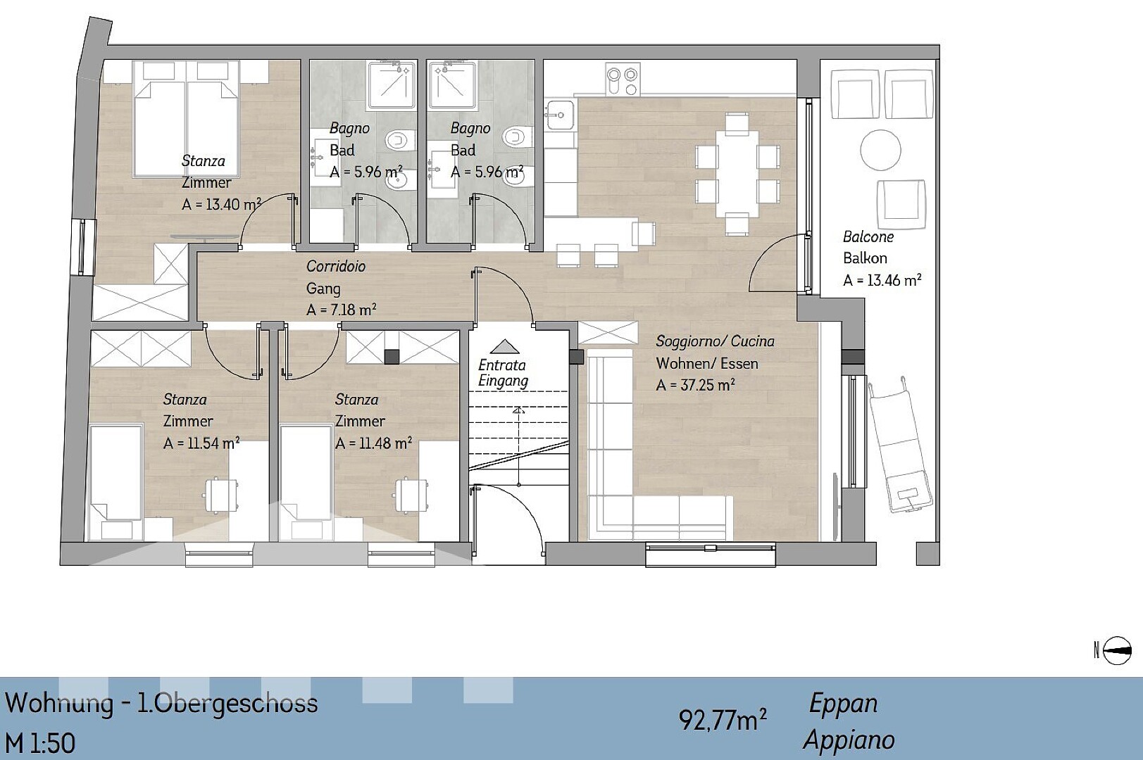
Diese ehemalige Arztpraxis ist zur Umwandlung in eine 4-Zimmerwohnung mit 3 Schlafzimmern, 2 Bädern, großzügige Wohnküche und Balkon bestens geeignet. 
Aufgrund der Umwidmung der Zweckbestimmung wird die Wohnung konventioniert und es sind zusätzlich die Erschließungskosten als weitere Kosten einzuplanen. Das Objekt kann auch fertig vom Eigentümer übernommen werden, dementsprechend sind die finalen Kosten inklusive Projektierung, Umwidmung und Umbau entsprechend höher. 
Der Makler hat Anspruch auf eine Provision in Höhe von 3% (drei Prozent) des Verkaufspreises (zzgl. MwSt.), wenn der Vertrag durch seine Vermittlung zustande kommt.  

Info
Handelsfläche
128,00 m²
Nettofläche
105,00 m²
Stockwerk
1
Badezimmer
2
Schlafzimmer
3
Heizungskontrolle
Autonom
Keller
Ja
Balkon
Ja
Referenznummer
EP V-W00459
Pläne Anzeigen
Mappe laden
zurück zur Übersicht
zurück zur Übersicht