zurück zur Übersicht

EP M-GEW00347 - Büro und Gewerbefläche in TOP Lage

Alle Bilder
380 m²
Preis auf Anfrage
Eppan a.d. Weinstr., Südtirol

Zwei Bürofläche (auch gemeinsam zu mieten) im dritten Stock eines Gebäudes in Pillhof/Eppan ist in einem sehr gutem Zustand, geräumig hell und verfügt über einen Aufzug für einen bequemen Zugang.

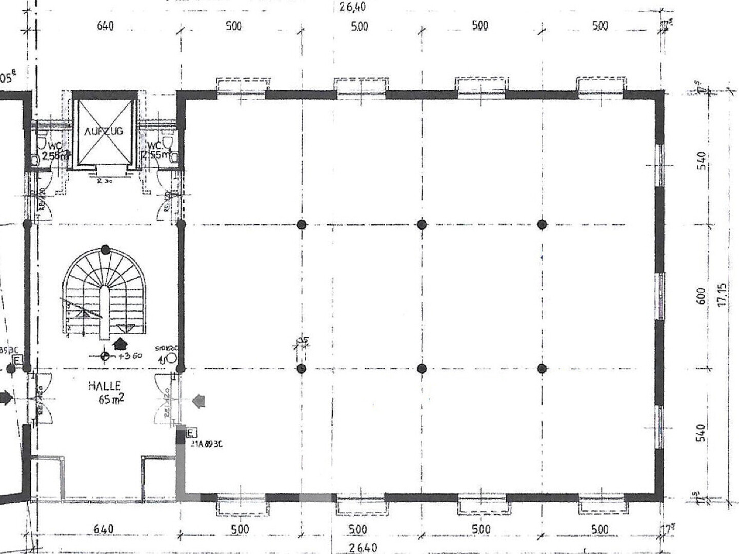
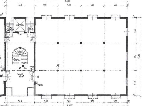
Eine große Fläche im zweiten Stock ist in einem sehr gutem Zustand, geräumig, vielseitig nutzbar (Trennwände usw. können noch von Seiten des Eigentümers angebracht werden), verfügt über einen Aufzug , bietet ausreichend Platz für verschiedene Arbeitsbereiche und kann nach individuellen Bedürfnissen gestaltet werden.

Bei erfolgreicher Vermittlung und Abschluss eines Mietvertrags berechnen wir dem Mieter eine Provision in Höhe von 15% der Jahresmiete.
 

Info
Handelsfläche
380,00 m²
Nettofläche
350,00 m²
Stockwerk
2
Zustand
Bewohnbar
Heizungskontrolle
Zentral
Aufzug
Ja
Referenznummer
EP M-GEW00347
Pläne Anzeigen
Mappe laden
zurück zur Übersicht
zurück zur Übersicht