zurück zur Übersicht

BZ V-W01083 - Helle Wohnung mit fantastischer Aussicht

Alle Bilder
1
1
59 m²
Preis auf Anfrage
Bozen, Südtirol

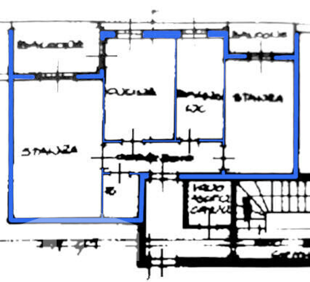
Gemütliche Wohnungmit Wohnzimmer, Küche, Schlafzimmer, Badezimmer, Keller und kondominialem Stellplatz. Der Zustand ist gut und bewohnbar und sie befindet sich im 9. Stock eines Gebäudes mit Aufzug. Zwei Balkone laden zum Verweilen im Freien ein. Die Gesamtwohnfläche beträgt 46,5 m². Die Wohnung bietet eine ideale Gelegenheit für Singles oder Paare, die in einer zentralen Lage wohnen möchten. 

 Der Makler hat Anspruch auf eine Provision vom Käufer in Höhe von 3% (drei Prozent) des Verkaufspreises (zzgl. MwSt.), wenn der Vertrag durch seine Vermittlung zustande kommt. 

Info
Handelsfläche
59,00 m²
Nettofläche
46,50 m²
Stockwerk
9
Badezimmer
1
Schlafzimmer
1
Zustand
Bewohnbar
Heizungskontrolle
Zentral
Parkplätze
Ja
Keller
Ja
Balkon
Ja
Aufzug
Ja
Energiezertifizierung
In Ausarbeitung
Referenznummer
BZ V-W01083
Pläne Anzeigen
Mappe laden
zurück zur Übersicht
zurück zur Übersicht