zurück zur Übersicht

BZ V-PAL01184 - Vielseitig nutzbare Wirtschaftsfläche in Haslach - Investment mit Ausbaupotenzial

Alle Bilder
1.000 m²
700.000 €
Bozen, Südtirol

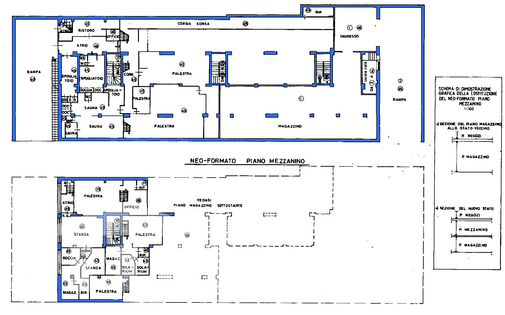
1000 m² Grundfläche, 3-4,5 m Raumhöhe, ehemals geräumiges Fitnessstudio mit Dienstwohnung, kann bei Renovierung wieder eröffnet werden. Potential für bis zu 40 Garagen. Hier ist Raum für Ihre kreativen Investitionsideen. 
 

Der Makler hat Anspruch auf eine Provision vom Käufer in Höhe von 3% (drei Prozent) des Verkaufspreises (zzgl. MwSt.), wenn der Vertrag durch seine Vermittlung zustande kommt. 

Info
Handelsfläche
1.000,00 m²
Nettofläche
0,00 m²
Stockwerk
Unterirdisch
Zustand
Zu rennovieren
Heizungskontrolle
Autonom
Energiezertifizierung
G
Referenznummer
BZ V-PAL01184
Pläne Anzeigen
Mappe laden
zurück zur Übersicht
zurück zur Übersicht