zurück zur Übersicht

BZ M-GEW00447 - große Halle mit Büros und Verkaufsräumen

Alle Bilder
6
990 m²
3.200 €
Bozen, Südtirol

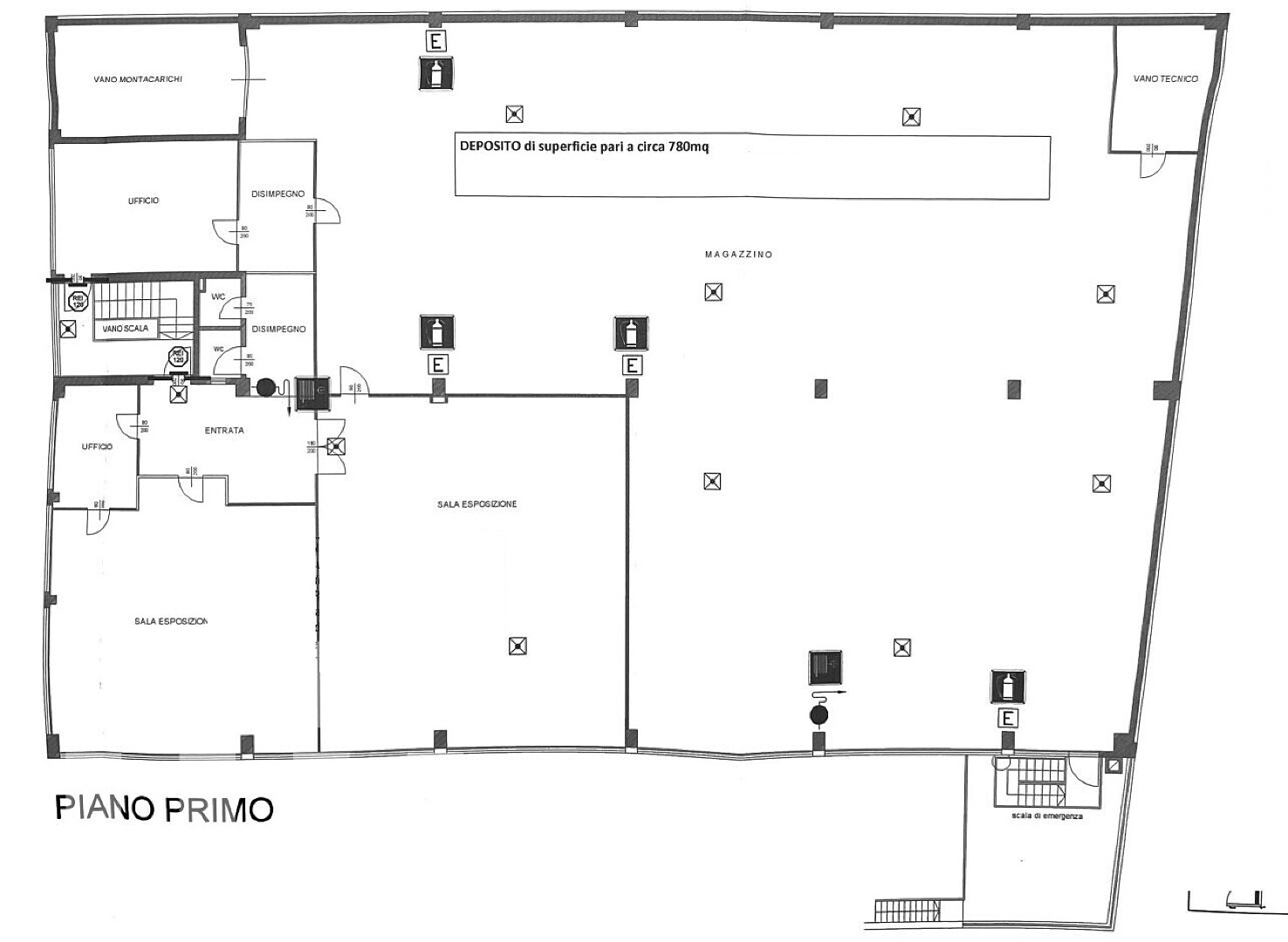
Zwei Ausstellungsräume und zwei separate Büros: ideal für die Verwaltung und den Betrieb: insgesamt 190 qm, hell und gut organisiert, ideal für die Präsentation von Produkten. 
Lagerhalle: 780 m², geeignet für die Lagerung von Waren. 
Aufzug: Erleichtert den Transport von Materialien und Waren direkt auf die Etage. 
Strategische Lage: in der Nähe der Autobahnausfahrt, mit schnellem und einfachem Zugang. 
Bei Abschluss eines Mietvertrags berechnen wir dem Mieter eine Provision in Höhe von 15% der Jahresmiete.
 

Info
Handelsfläche
990,00 m²
Nettofläche
970,00 m²
Stockwerk
1
Zustand
Bewohnbar
Heizungskontrolle
Autonom
Referenznummer
BZ M-GEW00447
Pläne Anzeigen
Mappe laden
zurück zur Übersicht
zurück zur Übersicht